Connectez‑vous pour ajouter ce coup de coeur
Envie de personnaliser ce modèle selon vos goûts et votre budget?
Contactez un conseiller en habitation sans tarder pour passer du rêve à la réalité.
Description de cette maison préfabriquée
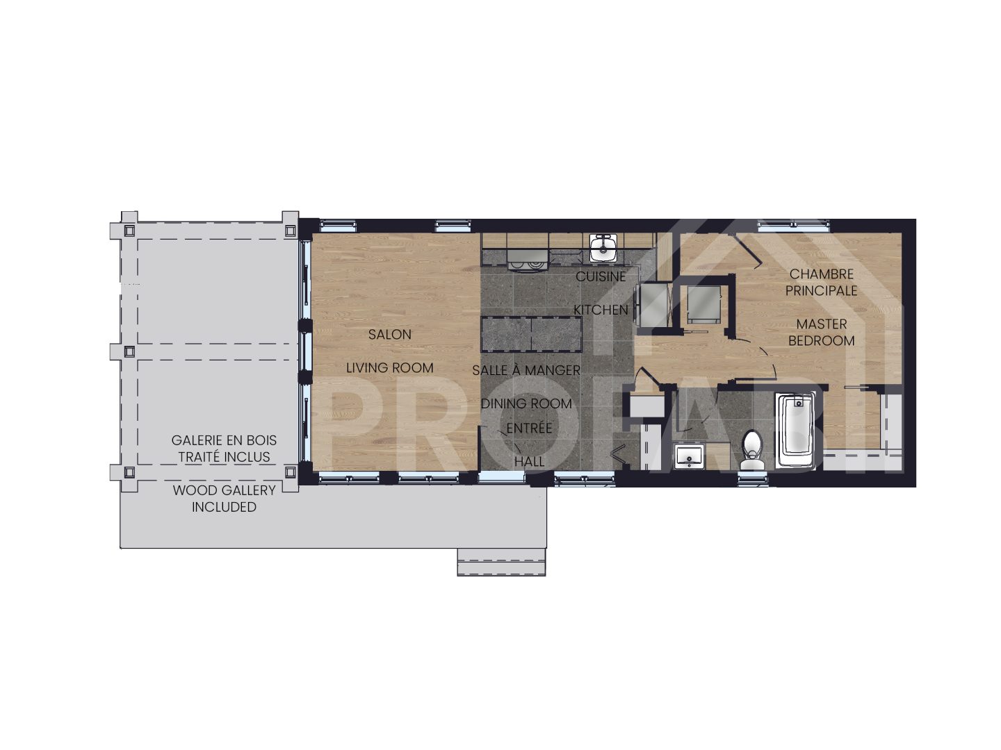
Le modèle Persea rejoint la collection unimodulaire créée avec Confort Design possède un aménagement de plain‑pied fluide et convivial, pensé pour celles et ceux qui recherchent un espace ouvert, fonctionnel et bien structuré. Cette micromaison usinée contemporaine est accueillante et chaque zone trouve naturellement sa place.
Dès l’entrée, la cuisine, le salon et la salle à manger s’ouvrent sur une aire ouverte lumineuse et accueillante, prolongée par une grande terrasse couverte pour profiter de chaque saison. À l’opposé, un couloir vous guide vers une zone plus intime, pensé pour le confort au quotidien : un espace buanderie dissimulé dans une garde‑robe, une salle de bain complète et une chambre spacieuse dotée de deux garde‑robes, pratiques pour tout avoir à portée de main et garder un espace toujours bien ordonné dans la microhabitation contemporaine.
Cette minimaison préfabriquée incarne un mode de vie où simplicité et confort vont de pair, dans un cadre harmonieux et tourné vers l’essentiel.
(sur pieux possible)
Dimensions
Superficie totale : 580 PI² (48'‑0'' x 15'‑8'')
Cuisine : 11'‑7'' x 7'‑3''
Salle à manger : 10'‑0'' x 7'‑2''
Salon : 10'‑4'' x 14'‑6''
Chambre à coucher principale : 10'‑2'' X 9'‑3''
Salle de bain : 8'‑8'' x 5'‑0''










