Connectez‑vous pour ajouter ce coup de coeur
Envie de personnaliser ce modèle selon vos goûts et votre budget?
Contactez un conseiller en habitation sans tarder pour passer du rêve à la réalité.
Description de cette maison préfabriquée
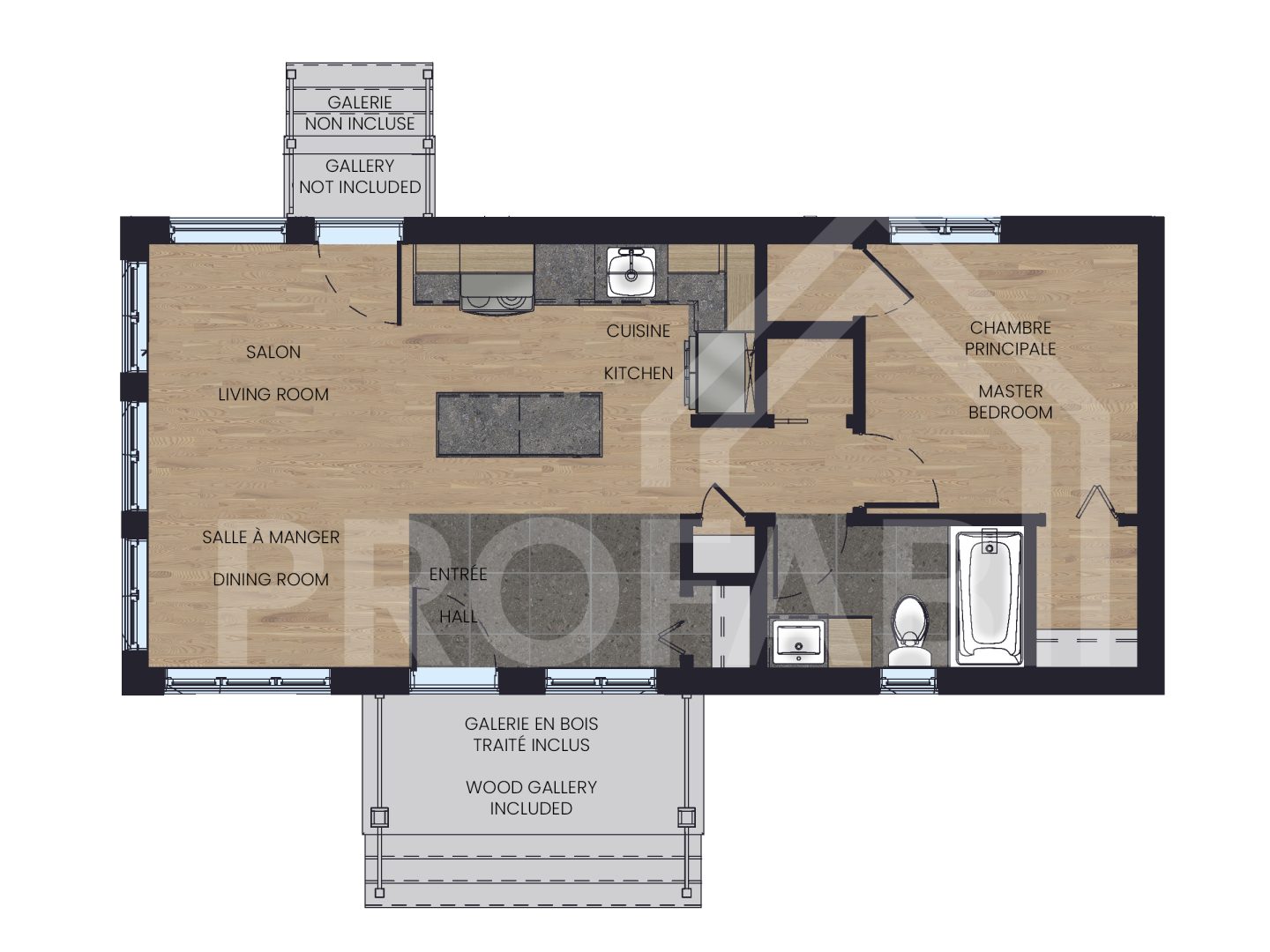
Le modèle Mandel, intégré à la collection unimodulaire de minimaisons usinées et né d’un partenariat avec Confort Design, mise sur une conception à l’échelle maîtrisée et un aménagement bien structuré. Cette micromaison de plain‑pied comprend une chambre fermée, une salle de bain fonctionnelle ainsi qu’une aire ouverte regroupant cuisine, salle à manger et séjour dans un agencement clair et cohérent.
Ses proportions bien pensées assurent une circulation fluide au sein de l’espace de vie, tout en maximisant chaque zone utile. Le style architectural de cette microhabitation privilégie la sobriété, avec une allure contemporaine qui s’adapte aisément à divers environnements.
Conçu pour répondre aux besoins essentiels dans un format restreint, mais complet, cette minimaison préfabriquée s’adresse à ceux qui recherchent une habitation bien conçue, abordable et facile à intégrer à différents modes de vie.
(sur pieux possible)
Dimensions
Superficie totale : 783 PI² (35'‑0'' x 15'‑8'')
Cuisine : 11'‑7'' x 7'‑3''
Salle à manger : 10'‑0'' x 7'‑2''
Salon : 9'‑2'' x 14'‑6''
Chambre : 9'‑4'' x 9'‑3''
Salle de bain : 8'‑7'' x 5'‑0''










