Log in to add your favorite model
To be able to add this model to your favorites, please create an account. It’s quick, easy and will allow you to personalize your experience on our platform.
Would you like to customize this model to suit your taste and budget?
Contact a housing conseillor today to turn your dreams into reality.
Description of this prefabricated home
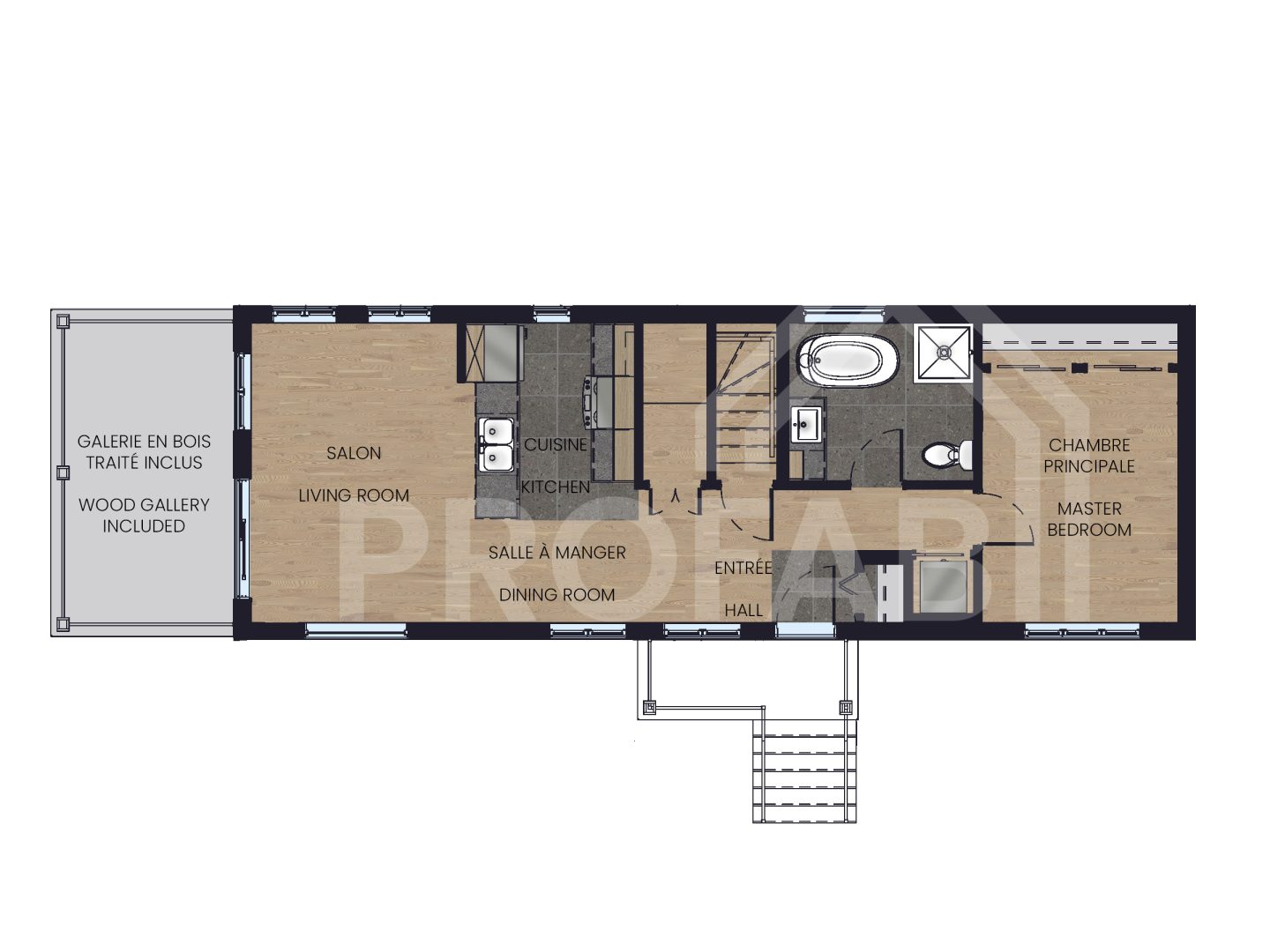
Designed with Confort Design, the Albizia model from our Unimodular collection of factory‑built homes stands out for its contemporary look and harmonious proportions, perfectly reflecting the spirit of modern micro homes. Its clean‑lined exterior is enhanced by large windows that bring in abundant natural light and highlight its sleek style.
Inside this bungalow micro home, every space has been carefully optimized to offer both comfort and functionality. The open area brings together a well‑organized kitchen, a welcoming dining area, and a comfortable living room, creating a smooth and pleasant flow. The thoughtfully designed bedroom is paired with a spacious pantry, a true asset for maximizing storage.
Albizia is a prefabricated mini‑house that smartly combines contemporary design, efficient layout, and a bright atmosphere, offering an elegant and practical solution for those who appreciate compact, well‑designed spaces.

Specifications
Micro‑Home
Contemporary style
Bedrooms : 1
Bathroom : 1
Foundation : Foundation
(on crawl space available)
(on crawl space available)
Garage : optional
Dimensions
Total surface area : 721 sq.ft. (46'‑0'' x 15'‑8'')
Kitchen : 8'‑6'' x 9'‑6''
Dining room : 5'‑0'' x 9'‑6''
Living room : 10'‑0'' x 14'‑6''
Master bedroom : 9'‑6'' x 12'‑2''
Bathroom : 8'‑8'' x 7'‑5''









